Capat CUG Casa single 3 camere Lunca Cetatuii - ID TI606

Capat CUG Casa single 3 camere Lunca Cetatuii

120.000€
ID:TI606  Iasi,  Lunca Cetatuii

Descriere apartament

CAPAT CUG – LUNCA CETATUII
Case individuale 3 camere decomandate 

Locuinta individuala, teren generos, zona linistita, acces rapid catre Iasi. Ideala pentru familie sau investitie pe termen lung.

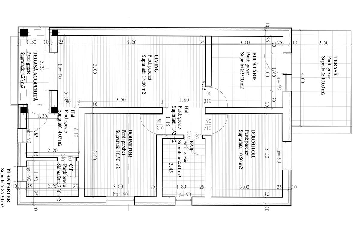
Suprafata totala 76 mp
62 mp interior + 14 mp terase
Teren: aproximativ 300 mp

Compartimentare eficienta:
Hol acces
Living luminos
2 dormitoare
Bucatarie cu iesire directa pe terasa
Baie complet utilata
Camera tehnica
Pod pentru depozitare, acces cu scara rabatabila

Constructie racordata la toate utilitatile: gaz, energie electrica, apa, canalizare.
Izolatie cu spuma poliuretanica si termosistem de 10 cm pentru eficienta termica sporita.

Statia de autobuz la aproximativ 950 m, linii 27, 41, 44.

Termen de predare:  vara 2026.

Preturi:
120.000 euro – plata integrala la antecontract
125.000 euro – prin credit bancarsau 50%/50%

TOP Imobiliare, comision 0%.

Pentru detalii si programare vizionare:
0754 345 259
0770 515 913

Caracteristici apartament

  • Zona: Lunca Cetatuii
  • Suprafata utila: 62 mp
  • Compartimentare: decomandat
  • Etaj: parter/
  • Numar Bai: 1
  • Numar Camere: 3
  • An Constructie: 2025

Caracteristici generale apartament

  •  Acces internet:Wireless
  •  Bucatarie:Da Nemobilata
  •  Calorifere:Da
  •  Clasa Energetica:B
  •  Destinatie:Locuinta
  •  Dotari:Scara interioara
  •  Geam baie:Da
  •  Izolatii termice:Exterior
  •  Pereti:Faianta Lavabil
  •  Podele:Parchet Gresie
  •  Stadiu Finisare:La rosu
  •  Strazi:Asfaltate Pietruite
  •  Usa intrare:PVC
  •  Usi:Din Lemn
  •  Utilitati:Curent Apa Canalizare Gaz CATV Telefon Internet
  •  Vecinatati Spatii:Autobuz Zona comerciala Supermarket Terenuri
  •  Zidarie:Caramida

Harta

Oferte similare

vanzare - Comision 0% - Exclusivitate
vanzare - Comision 0%
Tel: 0754345259 whatsapp