Capat CUG Vila moderna 4 camere 2 bai Lunca Cetatuii - ID TI567

Capat CUG Vila moderna 4 camere 2 bai Lunca Cetatuii

143.000€
ID:TI567  Iasi,  Cug

Descriere casa vila

VILA MODERNA 4 CAMERE, CAPAT CUG, LUNCA CETATUII

Pret: 143.000 euro

Iti propunem o vila moderna, bine compartimentata, situata la Capat CUG, in Lunca Cetatuii, intr-o zona linistita, intre vile, cu acces rapid catre oras.

Detalii proprietate:
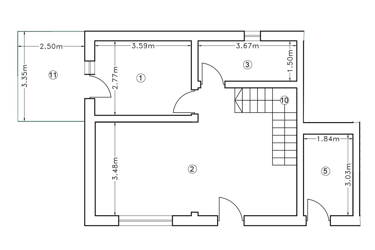
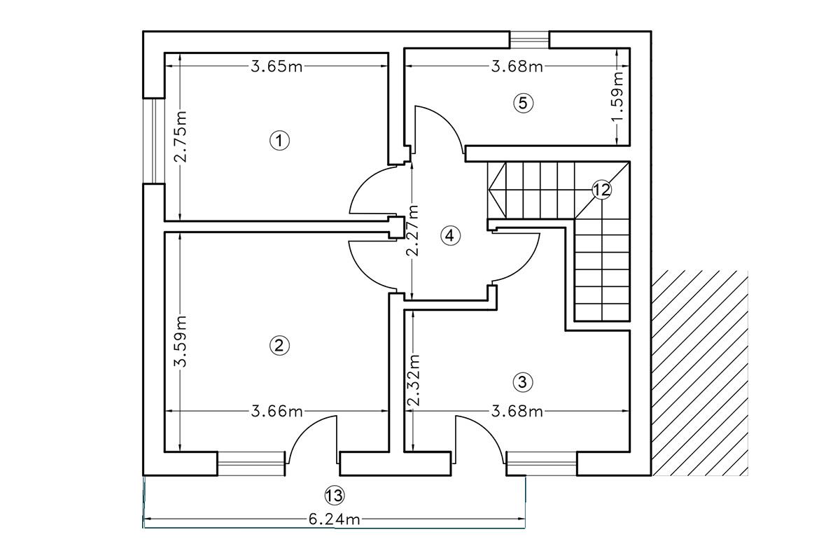
Suprafata totala: 107,5 mp
Suprafata utila: 93,7 mp
Teren: 260 mp
4 camere
2 bai
Terasa
Balcon la etaj
Magazie pentru depozitare

Compartimentarea este practica, cu spatii bine gandite pentru o familie. Zona de zi este separata de dormitoare, iar terasa si balconul aduc un plus de confort pentru relaxare.

Avantaje:
zona aerisita, doar case
acces facil spre Iasi
2 bai pentru confort zilnic
spatiu de depozitare separat
teren suficient pentru curte si zona verde

Pret: 143.000 euro

Contact:
Top Imobiliare
Raluca Sandu
Telefon: 0754 345 259

Caracteristici casa vila

  • Numar Camere: 4
  • Zona: Cug
  • Suprafata utila: 107.5 mp
  • Reper: Lunca Cetatuii
  • Numar Dormitoare: 4
  • Tip casa: Duplex
  • Numar Bai: 2
  • Regim Inaltime: 1
  • Numar Bucatarii: 1
  • An Constructie: 2026
  • Suprafata Teren: 260 mp
  • Acces: Auto, Pietonal
  • Front: 15 ml / nr fronturi 1
  • Destinatie: Locuinta
  • Disponibilitate: LIBER

Caracteristici generale casa vila

  •  Acces auto:Acces auto
  •  Acces Casa:Pietonal Auto
  •  Acces internet:Fibra optica
  •  Acoperis:Tabla
  •  Bucatarie:Da Inchisa
  •  Calorifere:Da
  •  Clasa Energetica:B
  •  Contorizare:Apometre Contor electric Contor gaz
  •  Curte:Pavata
  •  Destinatie:Locuinta
  •  Ferestre Casa:Term. PVC
  •  Geam baie:Da
  •  Incalzire Casa:Centrala Termica
  •  Izolatii termice:Exterior
  •  Materiale:Caramida
  •  Pereti:Faianta Lavabil
  •  Plansee:Beton Armat
  •  Podele:Parchet Gresie
  •  Stadiu Finisare:Semifinisat
  •  Teren imprejmuit:Teren imprejmuit
  •  Tip Casa:Duplex
  •  Tip Curte:Individuala
  •  Usa intrare:PVC
  •  Usi:Din Lemn
  •  Utilitati:Curent Apa Canalizare CATV Internet Gaz
  •  Zidarie:Caramida

Harta

Oferte similare

vanzare - Comision 0%
vanzare - Comision 0%
Tel: 0754345259 whatsapp